
Hace 100 años, en 1920, Le Corbusier expuso el primer modelo de lo que denominó la Maison Citrohan, una vivienda eficiente y asequible para la clase trabajadora, construida con materiales de fácil obtención y elementos producidos en serie en plantas industriales, inspirado en la fabricación de los vehículos automóviles. El año anterior, 1919, se había montado una fábrica de vehículos Citroën en París, y Le Corbusier comenzó a pensar en una vivienda con elementos fabricados en serie en talleres para su producción en masa. Estableciendo un juego de palabras con la marca de automóviles como ideal representativo de un sistema de producción en serie, denominó Citrohan al modelo de vivienda.
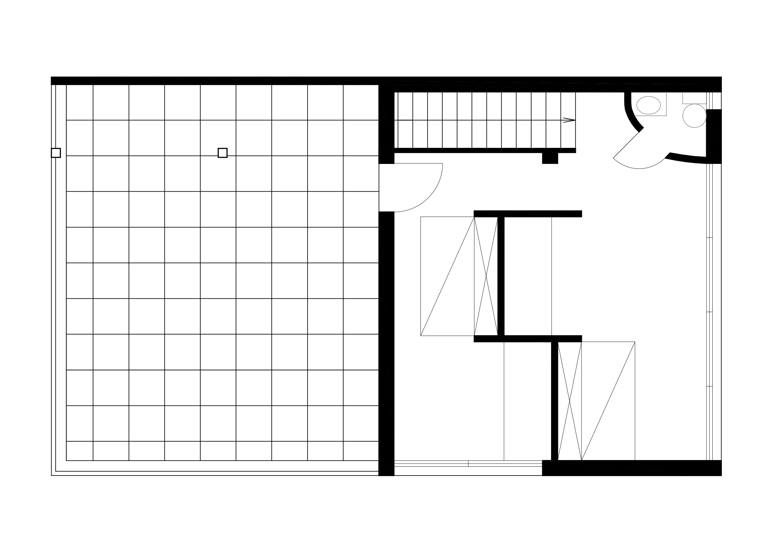
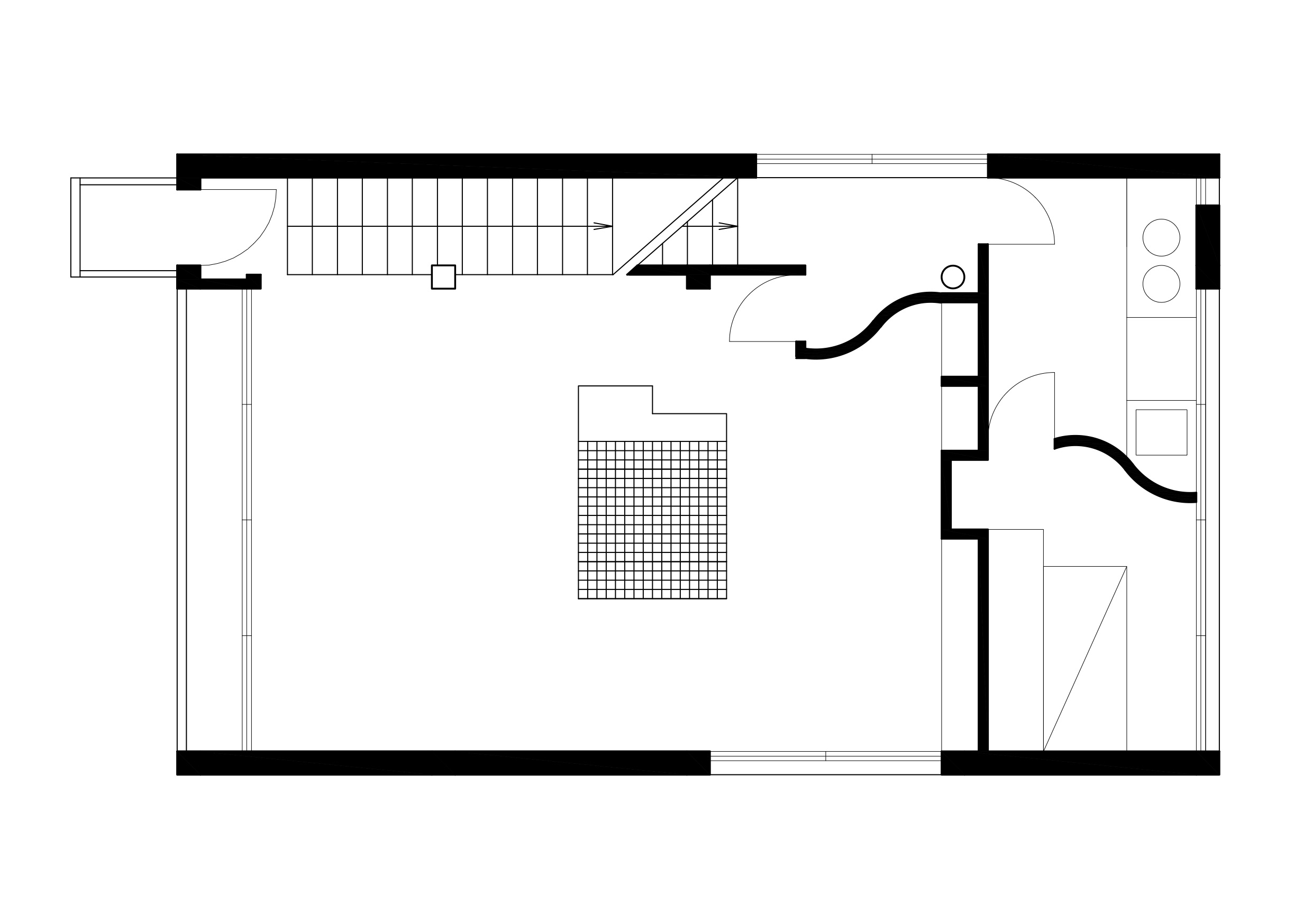
La vivienda tenía dos plantas de altura con la cocina y el comedor en la planta inferior y los dormitorios en la superior. La sala de estar tenía doble altura, con una escalera de caracol y un balcón en la planta superior recayente a dicho espacio. En esta casa, Le Corbusier hizo uso de la doble altura por primera vez como elemento organizativo del volumen de la vivienda y de relación entre sus espacios. En la cubierta plana de la vivienda se disponían unas habitaciones para invitados accesibles directamente desde el exterior y una terraza descubierta.
Le Corbusier modificó el diseño de la vivienda Citrohan en los años siguientes, realizando algunas variantes sobre el modelo inicial, por ejemplo, elevando la vivienda sobre pilares e incorporando un garaje, para distintas exposiciones y proyectos para el barrio Frugés y la Maison Guiette, hasta un último modelo que se construyó para la Weißenhofsiedlung de Stuttgart a finales de 1927.
La casa Citrohan desarrollaba el concepto de “une machine à habiter” (una máquina para vivir) planteado por Le Corbusier en distintos artículos publicados en la revista de divulgación artística L’Esprit Nouveau, de la que fue cofundador, que concebía la vivienda con los elementos estrictamente necesarios para su funcionamiento y en la que, al igual que en las máquinas, sus partes prefabricadas pudieran montarse industrialmente.
Estas ideas impulsaron el movimiento moderno denominado estilo internacional en arquitectura. La arquitectura racionalista había llegado, el cambio ya estaba en marcha y ya nada volvió a ser como antes.
Rafa
Muy interesante la entrada!. Enhorabuena :))
Hulot arch. studio
Gracias Rafa, esperamos que sigas leyendo nuestros próximos artículos!! y sobretodo, que te sigan resultando interesantes.